
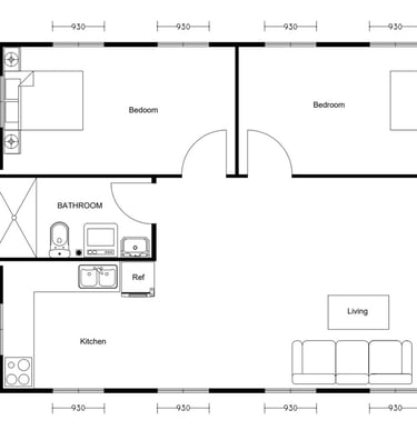
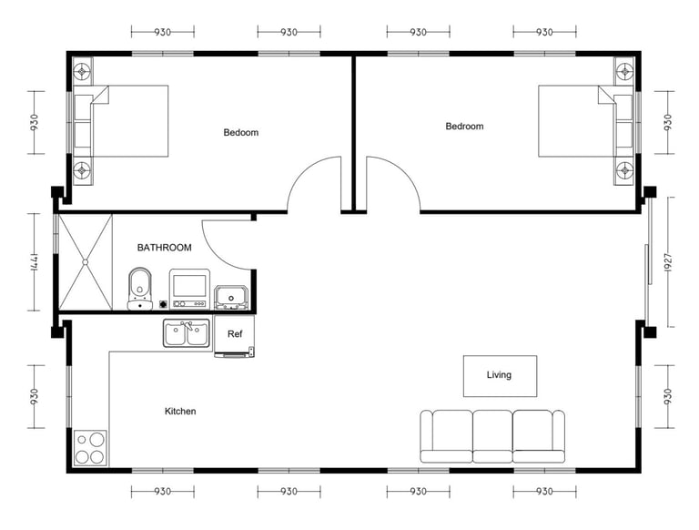
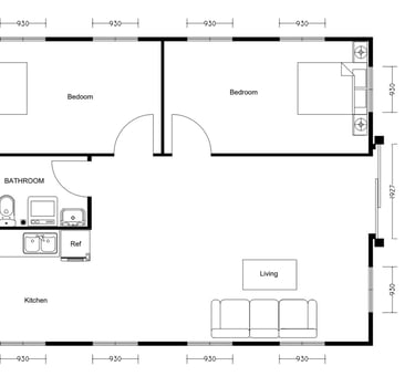
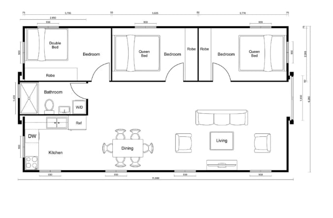
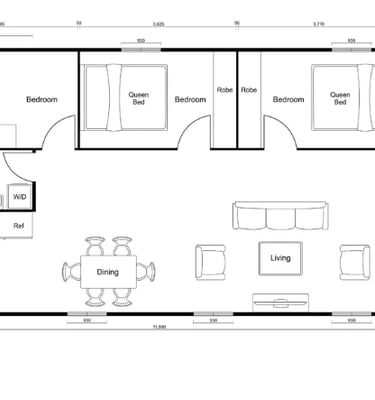
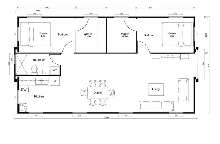
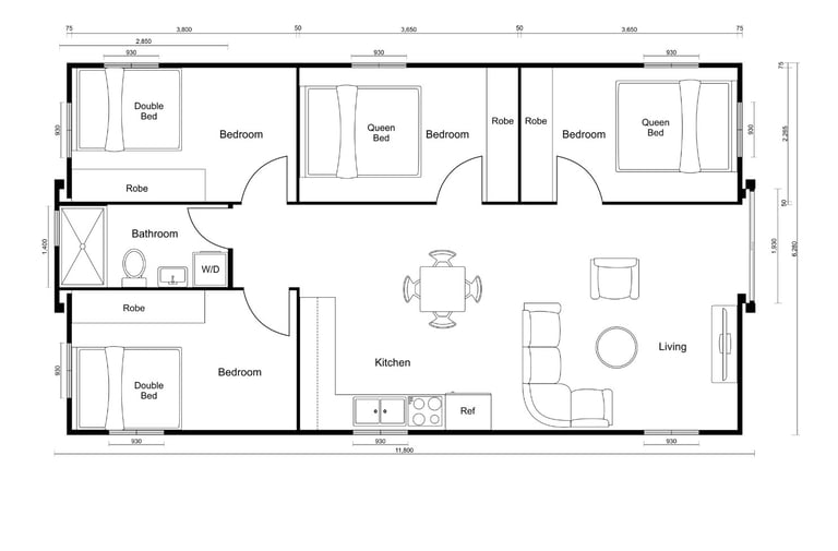
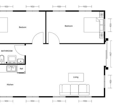
Floor Plans
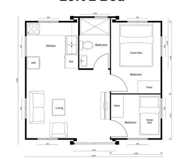
Floor plans are updated over time, so slight variations mayoccur.Furniture and appliances shown are for visualisationpurposes only and are not included.For a full list of standardinclusions, please refer to the individual product page.
The Studio


Designerpod


20FT Container house












30FT Container house
40FT Container house












20FT 20FT Two-story











Looking for something different?
Portable Container Homes from $5500
_________________________________________________________________________________________________________________________________________________________________________
Get Instant Pricing,Floor plans
& Full Brochure!




email:findhomefh@gmail.com
Phone:8618942654923






